Главная
Проекты
Деревянные дома до 200 кв. м.
Деревянные дома от 200 до 250 кв. м.
Деревянные дома от 250 до 350 кв. м.
Деревянные дома от 350 кв. м.
Деревянные бани
Фотогалерея
Фотогалерея
Стоимость
Обо мне
Контакты
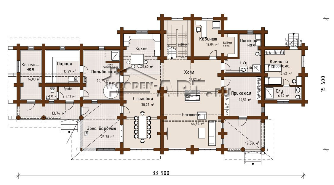
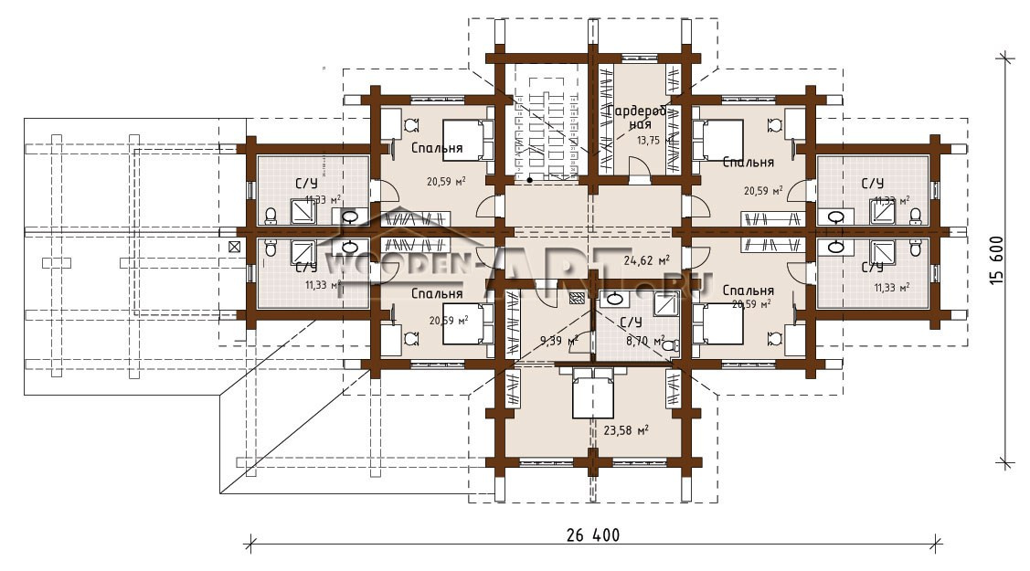
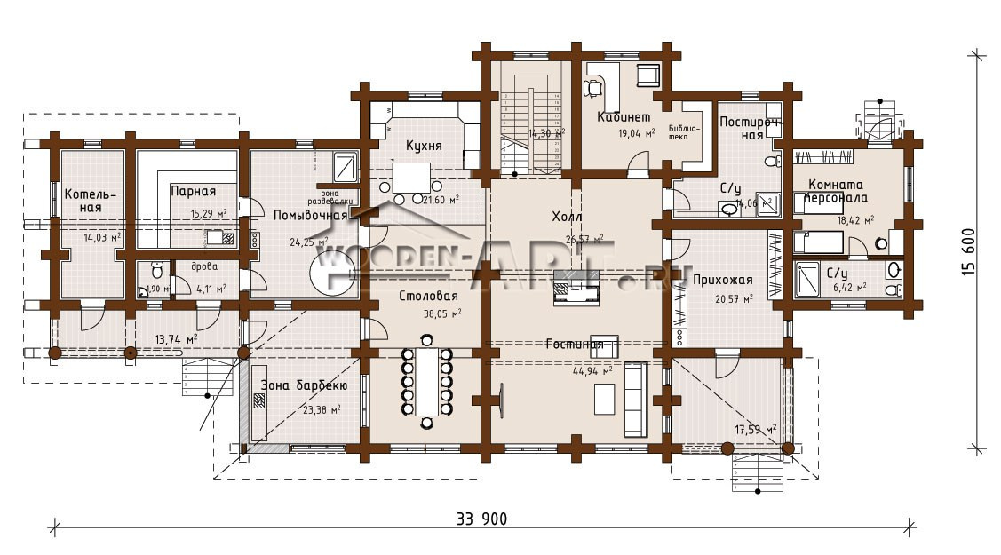
«Рыбки» 670 кв. м.
Расчётная площадь: 669,45 кв. м.
Общая площадь: 545,97 кв. м.
Площадь жилых помещений: 240,14 кв. м.
Материал: бревно ручной рубки
Размеры дома: 15,6 м х 33,9 м
Высота 1 этажа (до усадки): 3,7 м
Банная зона: есть
Спальни: 6 шт
Второй свет: нет