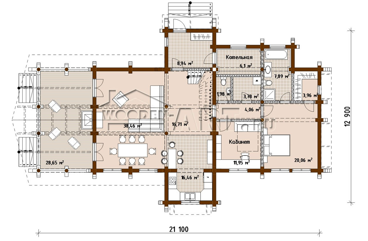
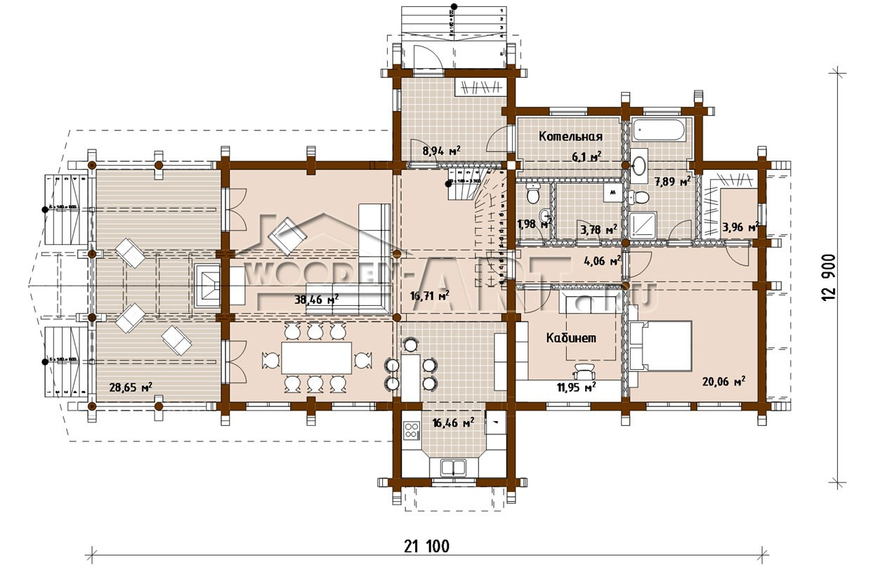
- Расчётная площадь: 252,17 кв. м.
- Площадь помещений: 87,18 кв. м.
- Размеры дома: 21,1 м х 12,9 м
- Материал: оцилиндрованное бревно
- Спальни: 3 шт
- Кухня-гостиная: 54,94 кв. м.
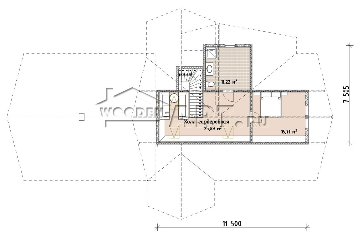
В этом доме из оцилиндрованного бревна сочетаются природная эстетика, уют и продуманная функциональность. Сложная кровля с широкими свесами и бревенчатые стены создают атмосферу основательности и защищённости. Дом гармонично вписывается в любой ландшафт, становясь его главным украшением. Планировка дома максимально удобна для проживания большой семьи и приёма гостей. Центр первого этажа — просторная гостиная с выходом на открытую террасу, где можно собраться всем вместе за большим столом или у камина. Кухня-столовая расположена рядом, что добавляет комфорта при организации семейных обедов и ужинов, а из кухни также предусмотрен выход на веранду для летних вечеров на свежем воздухе. На первом этаже также есть отдельный кабинет, хозяйственная зона, котельная, санузел и дополнительная спальня, что особенно ценно для пожилых членов семьи или гостей. Второй этаж дома — это приватная зона с удобной гардеробной, двумя спальнями и просторным санузлом. Такой подход обеспечивает максимальную приватность для жильцов, а вместительная гардеробная решит вопрос хранения вещей.
Дерево в качестве основного строительного материала создаёт в доме благоприятный микроклимат, поддерживая оптимальную влажность и температуру, а также наполняет пространство умиротворяющей атмосферой уюта. Энергосбережение, экологичность и престиж — главные преимущества этого проекта. Дом из оцилиндрованного бревна по представленному проекту станет не только функциональным жилищем, но и ярким символом статуса и заботы о гармонии с природой, прослужив не одному поколению вашей семьи
Проектирование 2021 г.

















